Mehrfamilienhaus in 1230 Wien
Ruhig, grün, großzügig – Ihr Mehrfamilienhaus im 23. Bezirk!Haus Wien
9 Zimmer
3 Badezimmer
Wohnfläche: 160,0 m²
Grundstücksfläche: 520,0 m²
Nutzfläche: 379,0 m²
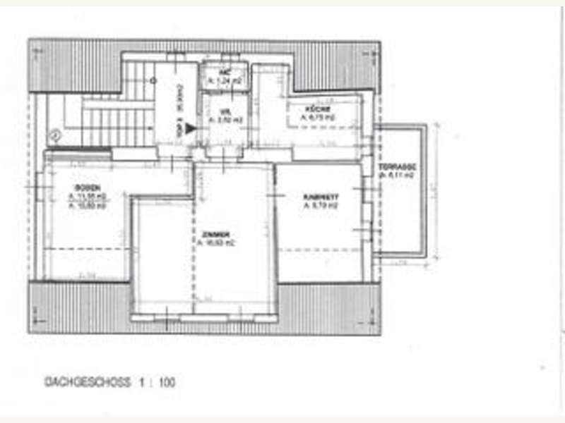
Balkone/Terrassen: 18,11 m²
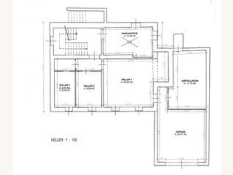
Keller: 3,0 m²
3 seperate WC
1 Balkon
1 Terrasse
1 Stellplatz
Teilmöbliert
Räume veränderbar
Zentralheizung
WG geeignet
Gartennutzung
Garage
Verfügbar: sofort.
Mehrfamilienhaus kaufen - Wien
Kaufpreis: € 980.000,-
Wohnfläche: 160 m²
Grundstückfläche: 520 m²
Nutzfläche: 379 m²
9 Zimmer
Wohnfläche: 160 m²
Grundstückfläche: 520 m²
Nutzfläche: 379 m²
9 Zimmer
Ruhig, grün, großzügig – Ihr Mehrfamilienhaus im 23. Bezirk!
Dieses charmante Mehrfamilienhaus aus dem Baujahr 1927 überzeugt durch seinen zeitlosen Altbau-Charme und bietet vielfältige Nutzungsmöglichkeiten für Eigennutzer, Investoren oder Projektentwickler. Auf drei Wohnetagen verteilt sich eine Wohnfläche von ca. 160 m² – ideal für mehrere Wohneinheiten oder eine großzügige Familienresidenz.
Die Immobilie befindet sich in renovierungsbedürftigem Zustand und bietet somit die einmalige Gelegenheit, individuelle Wohnträume umzusetzen oder ein attraktives Renditeobjekt zu realisieren. Der klassische Grundriss, das originale Parkett, hohe Decken sowie zahlreiche Altbaudetails machen dieses Objekt besonders reizvoll.
Der großzügige Garten mit gewachsenem Altbaumbestand und eine sonnige Terrasse laden zum Verweilen im Freien ein und bieten viel Platz für Kinder, Freizeit oder Gartenliebhaber. Eine Garage sowie weitere Abstellmöglichkeiten im Kellergeschoss runden das Angebot ab.
Kein Exposé kann einen persönlichen Eindruck ersetzen. .
BITTE BEACHTEN SIE, DASS WIR AUF GRUND DER NACHWEISPFLICHT GEGENÜBER DEM EIGENTÜMER NUR ANFRAGEN MIT VOLLSTÄNDIGER BEKANNTGABE VON NAME, ANSCHRIFT, TELEFON UND E-MAIL BEARBEITEN KÖNNEN. HERZLICHEN DANK IM VORAUS!
Gerne senden wir Ihnen nähere Informationen per E-Mail zu. Für weitere Auskünfte steht Ihnen gerne jederzeit Herr Dieter Vollmost unter der Telefonnummer +43 664 751 34 185 oder per E-Mail unter dieter@4m-immo.at zur Verfügung.
VERKAUFEN AUCH SIE DERZEIT IHRE IMMOBILIE?
Profitieren Sie von unserem umfassenden Service und unserer jahrzehntelangen Erfahrung!Durch unsere Partnerschaften mit einem Partneranwalt, Notar und einer Bank stellen wir Ihnen eine schnellstmögliche Abwicklung zur Verfügung und können Ihnen dadurch eine effiziente Abwicklung garantieren. Wir bieten Ihnen die BESTE rundum Betreuung.Angaben gemäß gesetzlichem Erfordernis:
Heizwärmebedarf:253.4 kWh/(m²a)Klasse Heizwärmebedarf:GFaktor Gesamtenergieeffizienz:3.27Klasse Faktor Gesamtenergieeffizienz:F
Energieausweisdaten: Heizwärmebedarf: 253., Gesamtenergieeffizienz-Faktor: 3.270, HWB Klasse: G, fGEE Klasse: F.
Objektnummer: 2483/21723
Dieses charmante Mehrfamilienhaus aus dem Baujahr 1927 überzeugt durch seinen zeitlosen Altbau-Charme und bietet vielfältige Nutzungsmöglichkeiten für Eigennutzer, Investoren oder Projektentwickler. Auf drei Wohnetagen verteilt sich eine Wohnfläche von ca. 160 m² – ideal für mehrere Wohneinheiten oder eine großzügige Familienresidenz.
Die Immobilie befindet sich in renovierungsbedürftigem Zustand und bietet somit die einmalige Gelegenheit, individuelle Wohnträume umzusetzen oder ein attraktives Renditeobjekt zu realisieren. Der klassische Grundriss, das originale Parkett, hohe Decken sowie zahlreiche Altbaudetails machen dieses Objekt besonders reizvoll.
Der großzügige Garten mit gewachsenem Altbaumbestand und eine sonnige Terrasse laden zum Verweilen im Freien ein und bieten viel Platz für Kinder, Freizeit oder Gartenliebhaber. Eine Garage sowie weitere Abstellmöglichkeiten im Kellergeschoss runden das Angebot ab.
Kein Exposé kann einen persönlichen Eindruck ersetzen. .
BITTE BEACHTEN SIE, DASS WIR AUF GRUND DER NACHWEISPFLICHT GEGENÜBER DEM EIGENTÜMER NUR ANFRAGEN MIT VOLLSTÄNDIGER BEKANNTGABE VON NAME, ANSCHRIFT, TELEFON UND E-MAIL BEARBEITEN KÖNNEN. HERZLICHEN DANK IM VORAUS!
Gerne senden wir Ihnen nähere Informationen per E-Mail zu. Für weitere Auskünfte steht Ihnen gerne jederzeit Herr Dieter Vollmost unter der Telefonnummer +43 664 751 34 185 oder per E-Mail unter dieter@4m-immo.at zur Verfügung.
VERKAUFEN AUCH SIE DERZEIT IHRE IMMOBILIE?
Profitieren Sie von unserem umfassenden Service und unserer jahrzehntelangen Erfahrung!Durch unsere Partnerschaften mit einem Partneranwalt, Notar und einer Bank stellen wir Ihnen eine schnellstmögliche Abwicklung zur Verfügung und können Ihnen dadurch eine effiziente Abwicklung garantieren. Wir bieten Ihnen die BESTE rundum Betreuung.Angaben gemäß gesetzlichem Erfordernis:
Heizwärmebedarf:253.4 kWh/(m²a)Klasse Heizwärmebedarf:GFaktor Gesamtenergieeffizienz:3.27Klasse Faktor Gesamtenergieeffizienz:F
Energieausweisdaten: Heizwärmebedarf: 253., Gesamtenergieeffizienz-Faktor: 3.270, HWB Klasse: G, fGEE Klasse: F.
Objektnummer: 2483/21723
Preisdetails:
Kaufpreis: 980.000,--
Monatliche Kosten: 201,55
MWSt: 3.00 %
Provision: 3.00 %






















