Eigentumswohnung in 7000 Eisenstadt
Gemeinsam statt Einsam! Generation 50+ / Grünruhelage / 3-Zimmer-Wohnung mit Balkon und Garage! (Top 4 - 2.OG - 71 m² )Eigentumswohnung Eisenstadt
Eigentumswohnung kaufen - Eisenstadt
Wohnfläche: 71 m²
3 Zimmer
„GEMEINSAM statt Einsam !!“ - Wohnungen für alle im besten Alter ab 50 +
Diese kleine Wohnhausanlage mit 6 Wohnungen bietet den Bewohnern ein optimales, seniorengerechtes Wohnumfeld in grüner Lage mit guter Infrastruktur - einfach beste Lebensqualität!
Gemeinsames aber doch eigenständiges Wohnen unter Gleichgesinnten
Individuelle Betreuungsmöglichkeit durch Rotes Kreuz möglich
Appartement für eventuell später benötigte 24h Betreuung
Notrufsystem
Raum für Frisör-Fußpflege-Massage, Dampfkammer, Infrarotkabine,
Sportraum mit Tischtennis, + Sitzergometer, Rudergerät, Laufband..
Gemeinschaftsraum für gemeinsame Feiern, Kartenspiele, Basteln usw..
Gartenfläche zum Selbstanbau im Gemeinschaftsgarten
PKW-Einzelgaragen im Untergeschoß
Waldrand,- Ruhelage und Grün,- Fernblick
Bezug nach Vereinbarung 2026
Objektbeschreibung
6 Wohneinheiten mit Garten, überdachtem Balkon (1.Wohngeschoss) oder Terrasse (2. Wohngeschoss) und Gemeinschaftsgarten
Ausstattung Schlüsselfertig, ausgenommen Küche
Plasmathermen Heizung - neueste Technik, energieeffizient und kostensparend
Gästeparkplatz - je Wohneinheit 2 Stellplätze vorgesehen
Zuzüglich 1 PKW Garagenplatz obligat, Kaufpreis: €16.000,-
Fertigstellung Ende 2026 - Beziehbar nach Vereinbarung
Profitieren Sie so von der Möglichkeit der Mitgestaltung Ihres Wohndomizils !- Sonderwünsche sind gegen Aufzahlung möglich.
!! Mit guter Rendite auch als ANLEGERWOHNUNG !! geeignet.
Wohnungsbeschreibung
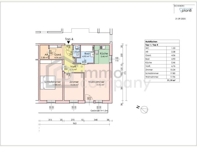
Wohnung Top 4 / 2. Wohngeschoss:
Die Wohnung mit 71,19 m² und einem Balkon (Ausrichtung Südwest) verfügt über folgende Raumaufteilung:
* Vorraum: 6,76 m²
* Küche: 5,46 m²
* Abstellraum: 2,38 m²
* Wohnzimmer: 17,96 m²
* Schlafzimmer: 17,80 m²
* Zimmer: 10,34 m²
* Bad: 4,90 m²
* WC: 1,53 m²
* Balkon: 13,00 m²
zusätzlich im Erdgeschoss:
* Kellerabteil: 6,40 m²
* Garage (optional): 15,66 m²
Der Kaufpreis ohne Garage beläuft sich auf 331.000.- € für den Endnutzer.
Der Anlegerkaufpreis beläuft sich auf 276.000.- € netto zzgl. 20% USt.
Lage
Die Stadt liegt am Fuße des Leithagebirges und ist die kleinste Landeshauptstadt in Österreich. Eisenstadt ist eine wachsende Stadt mit hoher Lebensqualität.
Die 14.000-Einwohner-Stadt verfügt über eine moderne und leistungsfähige Infrastruktur, ein vielfältiges kulturelles Angebot, zahlreiche Freizeiteinrichtungen und beste ökologische Bedingungen.
Besonders für die goldene Generation hat die burgenländische Landeshauptstadt einiges zu bieten. Um die Belange der Senioren vertreten zu können, wurde der Seniorenbeirat gegründet.
Aktivitäten:
Die burgenländische Landeshauptstadt bietet ein breitgefächertes Freizeitprogramm. Sportbegeisterte fühlen sich im Allsportzentrum, im Freibad oder auf einer der zahlreichen Lauf,- Spazier und Radwege oder dem Wandererlebnispfad in der Natur heimisch.
Kulturell bietet die Stadt zahlreiche interessante Museen & Galerien mit teilweise wechselnden Ausstellungen.
Verkehrsanbindung:
Die Busstation erreichen Sie in nur ca. 1 - 2 Gehminuten.
Buslinie 277: Eisenstadt - Mannersdorf - Bruck a. d. Leitha
Buslinie 235: Ebreichsdorf - Leithaprodersorf - Eisenstadt
Mit dem PKW sind Sie:
- in ca. 5min. mit dem Auto Zentrum Eisenstadt
- in ca. 15min. in Rust am Neusiedlersee
- in ca. 25min. im Seebad Mörbisch. Mörbisch, auch bekannt auch für seine alljährlichen Seefestspiele
Mehr Informationen und Unterlagen zu diesem Projekt für Senioren sowie die Möglichkeit einer Besichtigung vor Ort ist gerne auf Anfrage möglich!
Hinweis gemäß Energieausweisvorlagegesetz: Ein Energieausweis wurde vom Eigentümer bzw. Verkäufer, nach unserer Aufklärung über die generell geltende Vorlagepflicht, sowie Aufforderung zu seiner Erstellung noch nicht vorgelegt. Daher gilt zumindest eine dem Alter und der Art des Gebäudes entsprechende Gesamtenergieeffizienz als vereinbart. Wir übernehmen keinerlei Gewähr oder Haftung für die tatsächliche Energieeffizienz der angebotenen Immobilie.
Wir weisen darauf hin, dass zwischen dem Vermittler und dem zu vermittelnden Dritten ein familiäres oder wirtschaftliches Naheverhältnis besteht.
Der Vermittler ist als Doppelmakler tätig.
Nutzen Sie die einmalige Gelegenheit, diese Immobilie zu besichtigen – sehen und erleben ist sehr viel eindrucksvoller!
Eine Besichtigung ist kostenfrei und unverbindlich, und gibt Ihnen einen unverfälschten Eindruck von der Immobilie.
Gerne unterstütze ich Sie auch bei der Finanzierung sowie beim Verkauf/Vermietung Ihrer Immobilie.
Infrastruktur / Entfernungen
Gesundheit
Arzt <1.000m
Apotheke <1.500m
Klinik <7.500m
Krankenhaus <2.000m
Kinder & Schulen
Schule <1.000m
Kindergarten <500m
Universität <2.000m
Höhere Schule <1.500m
Nahversorgung
Supermarkt <1.500m
Bäckerei <1.500m
Einkaufszentrum <2.500m
Sonstige
Bank <1.500m
Geldautomat <1.500m
Post <1.500m
Polizei <1.500m
Verkehr
Bus <500m
Autobahnanschluss <3.500m
Bahnhof <1.500m
Angaben Entfernung Luftlinie / Quelle: OpenStreetMap
Objektnummer: 7939/2300162161
Preisdetails:
Lage: Wohnung in 7000 Eisenstadt
Lageangabe nur ungefähr, die genaue Adresse erfahren Sie beim Anbieter der Immobilie.Region: Schlosspark, Martinskaserne
Etagenanzahl: 2















